Lindebomen op Dorpsplein Waspik worden vervangen

14 jan 2018, 20:14Gemeente
dorpsplein
Google Streetview
Bij de herinrichting van het dorpsplein in Waspik zijn zes jaar geleden linden verplant. Deze blijken niet meer gezond te zijn.
Eén linde werd onlangs door de gemeente omgezaagd. Zeven linden staan er nog. De gemeente gaat de acht linden, in overleg met Platform Waspik, vervangen door nieuwe linden. De gemeente plant relatief jonge bomen die in een kwekerij “verplantklaar” worden gemaakt. De linden worden op dezelfde plaatsen terug geplant. De nieuwe bomen zijn acht meter hoog.

Planning

De kapvergunning is goedgekeurd. De bomen worden gekapt tussen 15 en 19 januari. Tussen 22 januari en 2 februari plant groenaannemer Brouwers nieuwe lindebomen.

Bereikbaarheid

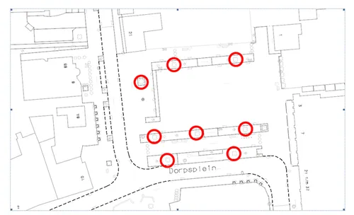
Tussen 22 en 28 januari zet de gemeente de plekken af met hekken. Het plein met de weekmarkt en de viskraam blijft bereikbaar. Hieronder ziet u waar de gemeente de lindebomen gaat vervangen of planten.
bomen

Meer informatie

Heeft u vragen? Neem dan contact op met Joop Hoefnagel via 013-5159427 of [email protected]
loading

Loading articles...

Loading